トップへ戻る

【リノベ事例】練馬区北町/リノベーションプロジェクト

今回は、都心にアクセスしやすい閑静な住宅地「練馬区北町」に位置する築30年中古マンションのリノベーションをレポートしていきます。

1.地域情報

・練馬 名前の由来

「練馬(ねりま)」という地名の由来には、定説は確立されていませんが、以下のような諸説があります。どの説も牧歌的で、自然と人々の生活が溶け込んでいるように感じられるところがあり、練馬(ねりま)の特徴を表しているとも言えるかもしれません。

赤土を練った説:関東ローム層の赤土を練った場所を「ねり場」と呼んだことに由来するという説。

沼が多かった説:石神井川流域の低地に「沼」=「根沼」が多かったことから、「ねぬま」が転じて「ねりま」になったとする説。

馬を馴らす説:中世、豊島氏の家臣に馬術の名人がいて、馬を馴らすことを「ねる」と言ったことから「ねりま」となったとする説。

今昔マップon the webより作成

・地域の歴史

練馬エリアは、江戸時代には江戸市中の人々に食材を供給する農村として発展しました。今も栽培されている伝統野菜の「練馬大根」は徳川家に献上されたとも伝えられています。

練馬区が誕生したのは戦後間もない時期で、当時の住民の独立運動の結果、隣接する板橋区から分離独立する形で1947年8月1日に誕生しました。東京23区では23番目の特別区として誕生した、最も新しい区です。

当時の人口は11万人ほどで23区内では3番目に少ない人口でしたが、人口が増えていき、現在では約74万人、23区内でも2番目に人口が多い区に成長を遂げました。

主要駅までの所要時間と乗換回数
平和台駅は、東京メトロ有楽町線と副都心線の2路線を使えて、乗り換えなしで池袋や有楽町、渋谷といった都心へのアクセスも良好なので、休日の娯楽にも困ることはありません。

駅名 所要時間 乗換回数
新宿駅 約23分 乗換1回
渋谷駅 約23分 乗換なし
池袋駅 約11分 乗換なし

・周辺施設

光が丘公園
6ヘクタールにも及ぶ広大な芝生広場、バーベキュー広場、いちょう並木、屋敷森跡地などがある都立公園。ちびっこ広場には遊具もあり、子どもも遊ぶことができます。かまどや調理台を備えた予約制のデイキャンプ広場も人気です。

ワーナー ブラザース スタジオツアー東京 – メイキング・オブ・ハリー・ポッター
世界中で愛される、映画『ハリー・ポッター』の制作の舞台裏を体験できるワーナー ブラザース スタジオツアー東京は、2023年6月16日(金)にとしまえん跡地に開業しました。

アジアでは初のオープンとなり、ハリー・ポッターの屋内型施設としては世界最大規模の大きさを誇ります。

練馬区役所
練馬駅西口から徒歩5分に位置する練馬区役所には、本庁舎20階に設けられた展望スペースがあります。

西新宿の高層ビル街や東京タワー、六本木ヒルズといった都内の観光名所を一望でき、天気がよく空気の澄んだ日には富士山を望むこともできるなど見晴らしは抜群です。

・大江戸線延伸計画

練馬区を通る都営地下鉄大江戸線には延伸計画があり、その中で既存の終着駅である「光が丘駅」から延伸計画が検討されています。

以下の3駅が設置される予定です。

これらの3駅を設置する合計約3.2キロメートルの延伸計画となります。
利便性が高まることで、練馬区の需要は今後も増えることになるでしょう。

2.物件情報

・物件の特徴

物件が位置する平和台駅は、東京都にありながら都心ほどビルや喧騒に溢れるでもなく、その名前の通り住みやすく落ち着いた住宅街です。公園や小さなお店が懐かしさを感じさせ、駅周辺にはスーパーやドラッグストアといった生活必需品を調達する店舗もあります。


物件は駅まで徒歩6分の距離にあり、道路から入った閑静な場所に位置しています。


エントランスは、快適な暮らしを守ってくれるオートロックになっており、不在時に荷物を受け取り可能にする宅配ボックスもあります。



広い駐車場と駐輪場が完備されていて、家族で住む人が使用しやすくなっています。


共用部はいつでも綺麗に管理されています。

・物件概要

所在地:東京都練馬区北町
交通:東京メトロ有楽町線「平和台」徒歩6分
構造:鉄筋コンクリート造 地上7階
総戸数:46戸
専有面積:64.73㎡
築年月:1995年2月

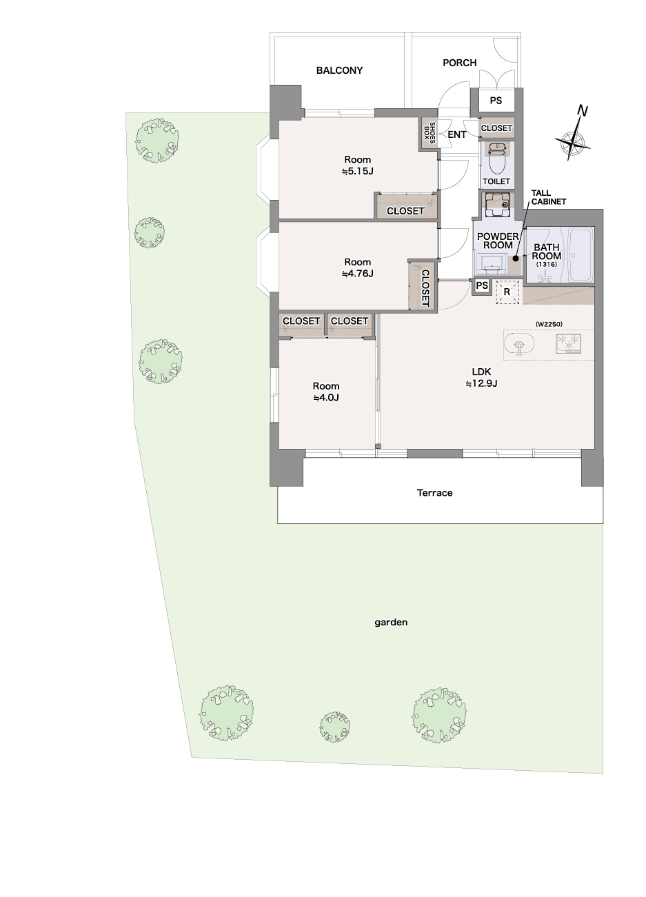
・間取り図<Before>

・室内写真<Before>

3.プランニング(10月17日 更新)

・コンセプト

「子どもと平和にのびのびと暮らせる家族空間」
都内への利便性の良さはありつつ都心から離れた落ち着いた土地で、家族でのびのびと暮らせる空間を作ります。

対象の物件は、大きなプライベートの庭があるのが特徴です。この庭で子どもを自由に遊ばせることができ、また、1階で子どもの足音も気にしなくていいので、子どものいるファミリーには最適な物件になるでしょう。

・リノベーション担当者の声と施工工事

【リノベーションのポイント】
PLAN.01 部屋数を増やしてファミリー向けに変える
PLAN.02 間取りの工夫で圧迫感がない空間づくり
PLAN.03 居室を増やしつつLDKの開放感も確保する
 

PLAN.01 部屋数を増やしてファミリー向けに変える
現行の間取りは、単身者か2人入居がメインの1LDKでしたが、今回3LDKに変更することで、ファミリー層が暮らしやすい間取りにします。

この物件の立地と庭を活かしたバリューアップを考えると、ファミリー向けにすることが最適であり、そのためには3つの居室を作って、3~4人(大人2人+子ども1~2人)が過ごせる空間にしていきます。

PLAN.02 間取りの工夫で圧迫感がない空間づくり
物件から取り除くことができない「梁(はり)」と「PS(配管)」。これらによる圧迫感が生まれないように工夫をします。

梁がある部分は天井が低くなるため、梁が見えている部分があると圧迫感が出やすくなります。これは間取りを工夫することで可能な限り梁を隠します。具体的には、各部屋の収納場所を梁に合わせて配置することで、視覚的に梁を見えなくします。バスルームも梁を避けて天井の高い状態にします。

また、物件の中央に位置するPSも圧迫感が出ないように注意すべき点であり、かつ、天井から床まであり使用できない部分のため、間取りを考える上での制限となっていました。
ここが最もプランニング時に苦労した点でしたが、検討した結果、うまく配置を工夫しつつ、圧迫感も出にくい間取りを考案しました。


PLAN.03 居室を増やしつつLDKの開放感も確保する

居室が1つから3つになると聞くと、リビングの開放感が落ちてしまうと思ってしまうかもしれません。
しかし、この点も工夫をすることで最大限にリビングが広く感じられる設計にします。

まず、リビング隣の居室の扉は引き戸にして自由に開口ができるようにします。これによって、引き戸を開ければ空間の広がりを作れるようにします。また、キッチンは壁につけずカウンターキッチンを採用することで、開放感が出やすい造りにします。

さらに、雑草が生い茂る庭はしっかりと手入れを行うことで、窓から見える広々とした庭の景観も相まって、さらに開放的なリビング空間を目指します。

・間取りBefore/After(予定)

4.解体/施工工事(1月30日 更新)

・解体~枠組み工事~壁立上げ

解体工事をし、そのあと枠組工事、壁立ち上がりと遅延や想定外の出来事はなく、順調に進んでおります。

解体から壁が立ち上がると、間取りの完成イメージができるようになってきました。

梁に合わせて廊下や居室の壁が立てられており、予想通りうまく梁が隠れることで、圧迫感が出にくい印象になっています。

5.施工完了(2025年3月1日 更新)

今回は「1居室を3居室にしながらも開放感を保つ」という難しさがありましたが、どちらの要望も満たすプランを作り施工完了をさせ、家族など大人数でもくつろげる空間を実現しました。

【リノベーション完了のポイント】
✓居室を3つに増やしてファミリー向けの物件に変わる
✓梁に合わせた間取りで圧迫感が出ない工夫
✓3居室に増えてもLDKの開放感を確保する

 

・室内写真<After>

居室を3つに増やしてファミリー向けの物件に変わる
以前の間取りは1LDKでしたが、今回ファミリー層が暮らしやすいように3つの居室を作り3LDKにしました。
もともと1つの居室は真ん中の梁に合わせて壁を設けて、2つの居室になりました。

また、もともと広く取られていたリビングは、引き戸を使って仕切ることで、1つの居室になるようになっています。

リビングから居室の方を見る時

居室からリビング方を見る時

梁に合わせた間取りで圧迫感が出ない工夫
「梁がある場所は天井が低くなり圧迫した印象を与えやすい、しかし、その梁は動かせない」という課題がありましたが、うまく梁を隠す間取りにすることで、その課題を乗り越えました。

具体的には、以下のように梁に沿って壁やドアを立ち上げました。

さらに部屋の角にある梁はクローゼットの中に収めます。

このように、梁が目立たなくなるように自然に配置をしたことで、圧迫感が出にくい空間づくりを実現しました。

3居室に増えてもLDKの開放感を確保する
上記にあったように居室が1つから3つになりましたが、リビングの開放感は落としません。キッチンは壁につけずカウンターキッチンを採用することで、リビングが抜けて見えます。

また、リビング隣の居室の扉は引き戸にして自由に開口ができるようにします。これによって、引き戸を開ければ空間の広がりを感じられます。

雑草が生い茂っていた庭は、しっかりと手入れを行いました。
窓から見える庭の景観も相まって、さらに開放的なリビング空間が実現しました。

また、居室については、それぞれの物理的な床面積は広くないものの、前述したように、梁を避けた造りで、かつ、大きな出窓があることで、広さを感じやすい空間になっています。

・担当者インタビュー

完成後、廊下からドアを開け、初めてリビングに入ったときに感じた印象は「とにかく明るく開放的」でした。
一般的には1階では採光を望める物件は少ないのですが、この物件は、広い庭に面した南向きの窓から、しっかりと自然光が入り、とても清々しい気分になります。

もちろんそれは偶然ではなく、この物件の特徴を存分に生かし、その明るい開放感を意識的に作り出しています。

今回の物件はある程度の広さと自由度があり、リビングを狭くするプランを含めて様々なプランを検討しましたが、軸としたのは「開放感」。最終的に広いリビングを確保するプランを選択し、実際に完成したリビングを見たとき、この決断が正しかったと確信しました。きっとこの明るく開放的な空間は多くの方に気に入っていただけると思います。

さらに、大きな庭があり1階なので足音も気にしなくていい環境です。今お子様がいるご夫婦はもちろん、将来お子様を考えているご夫婦も、ぜひこれからこの部屋でお子様と思う存分、開放的に遊んでください!

(担当者:リノベーション事業部 菊地)

・フォトギャラリー