【リノベ事例】目黒区下目黒2丁目/リノベーションプロジェクト
今回は、桜の名所で有名な目黒川至近、ホテル雅叙園東京や目黒不動尊の中心に位置する「東京都目黒区」にある築23年中古マンションのリノベーションをレポートしていきます。

1.地域情報
・目黒 名前の由来
「目黒」という地名の由来には、以下のような様々な説があります。
- めぐろの『め』は馬(駿馬)という意味で、 『くろ』は畔(あぜ)道を意味する。「めぐろ」は、馬畔(めぐろ)という音から生まれたという説。
- 目黒、目白、目赤、目黄、目青の五色の不動尊の1つ「目黒不動尊」が当地にあるという説。
- 『め』は窪地や谷を意味し、『くろ』は嶺を意味する。この地形を表す音が合わさり、目黒川と谷を囲む丘陵地帯から起こったという説。
1932年(昭和7年)には目黒町と碑衾町(ひぶすままち)が合併して目黒区が誕生しました。

今昔マップon the webより作成
・地域の歴史
江戸時代の一大行楽地の中心となっていた目黒不動尊。目黒駅から目黒不動尊入口までは料理屋や土産物屋が建ち並び、賑わいをみせていました。また、目黒川沿いの桜はこの時期に植えられたとされ、今でもキレイな桜を咲かせる有名な地域になっています。
戦後の復興では急速に発展し、住宅地の性質を強めました。さらに目黒川沿いや中目黒、自由が丘のエリアには商業施設や飲食店があつまり、人気のスポットとなっています。

1923年(大正12年)に目黒駅から丸子駅(現在の沼部駅)間を皮切りに、東急目蒲線(現在の東急目黒線/東急多摩川線)が開業されました。その後1927年(昭和2年)に東急東横線が開業され、駅名が次々と変わっていきます。
「学芸大学駅」は3回の改称を経ていますが、1964年(昭和39年)に東京学芸大学が小金井市に移転した際に「碑文谷駅」へ戻すことを検討されました。
そして「都立大学駅」は4回の改称を経ていますが、1992年(平成4年)に大学が八王子市に移転すると同時に戻すことも検討されました。
どちらも住民アンケートの結果「長年親しんだ駅名を変えないで」という声が多く変更はしなかったという歴史があります。
また、「自由が丘駅」は1927年(昭和2年)「九品仏駅」として開設され、大井町線開通前に「自由ケ丘駅」の名称に変更され、現在の「自由が丘駅」は1966年(昭和41年)に改称されました。
これは東急東横線の駅名変更の一部ですが、様々な転機があり街が発展していったことが伺えます。

近年の目黒駅の大きな発展といえば、2017年(平成29年)に竣工した駅前の「目黒セントラルスクエア」と「Brillia Towers目黒」の大規模開発です。
山手線内側1分という立地の希少性が大きく評価されているマンションで、分譲当初は資産形成の目的が多く富裕層の反響が多く話題になりました。敷地内は緑が多く喧騒から逃れ、駅隣接とは思えない自然を感じることのできる空間になっています。

■JR山手線で渋谷駅まで5分
■JR山手線で品川駅まで7分
■JR山手線で新宿駅まで12分
■JR山手線で東京駅まで20分
■東急目黒線・東急東横線で横浜駅まで31分
・目黒のさんまの歴史
海に面していない目黒に「さんま祭り」?と思う人、またここ数年、コロナ禍でイベントが縮小、中止になっていて知らない人もいるかもしれません。
「さんま祭り」は、秋のサンマの旬の時期に語られる事が多い古典落語の演目の一つからきています。
江戸時代、目黒に立ち寄った将軍様がサンマを食し、この味が忘れられず「サンマは目黒に限る」と言い切る殿様を風刺するといわれている滑稽話です。
この話をもとに、1996年に目黒駅の西側で「目黒のSUNまつり」が、東側で「目黒のさんま祭り」が毎年催されて焼サンマが無料で振舞われています。
地域の事業者・実行委員の人たちが力を入れている一大イベントです。

・現在の目黒~名所と名建築~
目黒川名所の桜並木
目黒川沿い約4㎞の桜並木に約800本もの桜が咲き誇り、エリアによって桜の見え方楽しみ方が変わってきます。
上流:池尻大橋付近の上流は川幅が狭く桜の花が川を覆いつくし桜のトンネルのように見えます。
中流:中目黒付近の中流にはカフェやショップが立ち並び、食事や休憩をしながら楽しめます。
下流:下目黒付近の下流は川幅が広く広場や遊歩道が整備されていて、ゆっくりとお花見ができます。
満開の時期にはライトアップなどイベントが開催されていて、夜になると提灯が幻想的な光を放ちます。風に吹かれて散る花吹雪や水面に浮かぶ花筏も見どころの一つです。

ホテル雅叙園東京
歴史的建造物と豪華な芸術品に触れることができる日本で最初に誕生した総合結婚式場です。
エントランスから客室・バンケット棟へ続く回廊の両脇には水面が広がり、季節によって飾られる装飾やフラワーアレンジメントに心奪われます。圧倒的な迫力のある旧目黒雅叙園のエントランスを移築した「招きの大門」を通り抜けると、カフェやレストランエリアになり、その吹き抜けの空間や庭園の滝、川の音が都会の喧騒を忘れさせます。

なかでも東京都指定有形文化財になっている「百段階段」は『昭和の竜宮城』と称された木造建築で時代を超えた名建築です。アニメ映画「千と千尋の神隠し」の湯屋のモデルの1つと言われているこの場所は、季節ごとにイベントも開催され誰でも見学することができます。
目黒区役所(目黒区総合庁舎)
1966年(昭和41年)に千代田生命保険相互会社の本社ビルとして竣工した、昭和の名建築家 村野藤吾氏の代表的な作品の一つです。2003年(平成15年)に目黒区役所として改修されたときも、この建築を残すことを課題にして建て替えられました。
もっとも特徴的なのは、建物の全面がアルミの鋳物でできているルーバーです。また、南側エントランスの湾曲した庇も目に留まります。
エントランスホールは床や壁が白い大理石張りになっていて、曲線の階段が伸びていて、天井にはトップライトが埋め込まれています。お役所とは思えない美術館の様な空間が広がっています。中庭には池があり、趣のある茶室も残っています。
この貴重な建築を巡る“建築ガイドツアー”が開催されており、建築家の方のガイドがあるので外国人にも人気があります。

目黒インテリアストリート
2000年頃、目黒から西に延びる目黒通りはインテリアストリートと呼ばれ、北欧家具ブームをきっかけに多くの家具店が軒を連ねていました。
北欧家具に限らず、ミッドセンチュリー・モダン・アジアンテイストをはじめアンティーク・ヴィンテージ家具もあり、一点物との出会いを求めて散策する楽しさもあります。
・これからの目黒区開発(自由が丘)
スイーツ店や美容室が多く、閑静な住宅街のイメージがある自由が丘の開発が続いています。長年地元民に愛される街も建物の老朽化が問題視され、近隣の二子玉川や武蔵小杉に人が流れていました。
そんな自由が丘駅前の開発<自由が丘一丁目29番地区第一種市街地再開発事業>が2026年7月竣工予定で進んでいます。店舗やオフィス、住宅、駐車場の地上15階建てのビルは、都内各所で進む大規模な再開発と比べると小ぶりですが、周辺に高層ビルがなく駅前という好立地なので、完成すれば自由が丘のランドマーク的存在になることでしょう。

また、先立って2023年10月には大丸ピーコック跡地に商業施設「JIYUGAOKA de aone(自由が丘デュアオーネ)」がオープンし1年が経とうとしています。駅から徒歩2分の立地で、敷地の中に緑地やテラスが多く、四季折々の木々や草花が植えられ、開放感あふれる屋外空間となっていて、すでに話題のスポットになっています。
他にも、2028年度着工予定の<自由が丘東地区再開発>が計画されていて、自由が丘の街が活気づくこと間違いなし!新旧交わる街並みに期待できます。
2.物件情報
・立地
目黒駅から徒歩8分、目黒川と目黒不動尊の中間の閑静な住宅街にあり、南フランスを思わせる明るい外観と、石貼とテラコッタタイルが印象的な共用部、エントランスホールはホテルのロビーの様な落ち着きと温かみのあるスペースになっています。

徒歩2分にある目黒川は都内屈指の桜並木のスポットとして知られていて昼夜満喫できるのは魅力の一つです。また、目黒駅を中心に恵比寿・中目黒・六本木など飲食店が多くあるエリアにも気軽に足を運べます。
・物件概要
所在地:東京都目黒区下目黒2丁目
交通:JR山手線・都営地下鉄三田線・東京メトロ南北線・東急目黒線「目黒」駅徒歩8分
構造:鉄筋コンクリート造地上7階建て
総戸数:29戸
専有面積:41.25㎡
築年月:2001年9月
・室内写真<Before>




3.プランニング(9月28日更新)
・コンセプト
~山手線ブランドを貴ぶ閑静な住宅地で、ハイクラスの生活を送れる住まい~
目黒という利便性のいい街に居心地の良さを感じている人や、憧れをもっている人も多く、この地に住みたい!と憧れを抱く30~40代の単身者に向けたハイグレードのリノベーション企画です。
・リノベーション担当者の声と施工工事
都心でありながら緑も多く残る生活がしやすい環境のプロジェクトです。
単身者がメインターゲットとなるので、ワンランク上のひとり暮らしができる空間づくりをおこなっていきます。

仕様イメージです。
Plan 1.ペニンシュラ型キッチンを活用した開放感のあるLDKづくり
Plan 2.水回り設備を集約することで生活動線を整える
Plan 3.ひとり暮らしを想定して家具配置の自由度の高い居室づくり
Plan 4.1階住戸のネックとなる明るさを確保するためのアイディア
Plan 1.ペニンシュラ型キッチンを活用した開放感のあるLDKづくり
キッチンは配管の位置を考えるとスペースは限られていますが、ハイグレードの開放的な空間を演出するために今回は“ペニンシュラ型キッチン”を採用しました。
造作壁型のキッチンと異なり、ペニンシュラ型のキッチンは前面に壁が無いため奥行のある空間づくりに最適です。
また、リビング空間を広く確保するためには、キッチンの配置をできるかぎりバルコニー面から離す必要性があります。
そのために廊下を最小限にして入口の扉を斜めに配置することで、動線を確保しながらキッチンスペースをバルコニーから離します。
ペニンシュラ型キッチンを採用したことによりキッチン上部に収納が無いため、収納力が大きく下がります。この減少した収納力を、今回はキッチン背面に“カップボード”を設置することでカバーします。
収納力だけではなくキッチンと同色のカップボードを設置することにより、キッチン全体に統一感と高級感を与えることができます。

Plan 2.水回り設備を集約することで生活動線を整える
現状の間取りはキッチン奥に洗濯機置場が設置されていました。これは、新築当時の給水や排水設備の兼ね合いからキッチンスペースに設置されたものだと考えられます。
今回のリノベーション工事で専有部の給水管、排水管も新設するので、キッチンスペースにあった洗濯機置き場を洗面室へ移動させることで生活動線を整えていきます。
また、扉がなく洗面台と仕切りのみとなっていたトイレを独立させ、ひとり暮らしには無駄に大きかった洗面台を最適なサイズに変更することで洗濯機置き場を確保しました。
さらに洗面台から洗濯機置場上部にはキャビネットを設置することで収納力を向上させて、快適に利用できる水回りにしていきます。

Plan 3.ひとり暮らしを想定して家具配置の自由度の高い居室づくり
現状の居室は大型のクローゼットが設置されていて収納力は十分な造りでした。しかし、クローゼットの前は開口面となるため家具を設置することが出来ません。大型クローゼットで収納面ではとても嬉しい造りですが、居室の利用可能スペースが大きく減少していました。
今回はこの大型クローゼットを撤去して、新たにウォークインクローゼット(WIC)を設置します。WICにすることで収納力はさらに向上し、開口面に引き戸を採用することで、今までは190㎝だった開口部を73㎝まで大幅に縮小しました。
開口面を小さくすることでデスクや収納棚、観葉植物などを配置することが可能となります。
また、窓際に設置されていたカウンターを撤去することにより、居室内を最大限に家具の配置に活用することができます。同じ居室サイズであったとしても、使えるスペース空間が大きく変わります。

Plan 4.1階住戸のネックとなる明るさを確保するためのアイディア
今回の住戸は1階に位置しているため、最大のネックとなるのが『日当たり』です。目黒という都心部なので周辺にはマンションが多く、室内に明るさを確保する事がとても難しく課題となります。
さらにこの住戸はインナーバルコニーとなっているため、リビング側への採光がさらに困難な造りとなっています。そのため今回は外からの採光確保と、部屋の奥まで光が届くような空間づくりを行っていきます。
まずは『天井高』です。天井を高くすることで部屋の奥まで光が届くようにします。そのため今回はリビングにはダウンライトを使用せずに『間接照明』を採用します。天井にダウンライトを設置する場合、ダウンライトを埋め込むために7㎝~10㎝の空間が必要となり、その分、天井高は低くなってしまいます。
しかし今回は、梁に合わせて側面に間接照明を配置することにより天井高を下げることなく、室内空間へ雰囲気の良い明るさを確保することができます。これにより天井高は約2.6mを確保しました。
一般的な中古マンションの場合、天井高は2.2m~2.4mほどなので今回はとても天井を高く感じて頂ける空間となります。
また、居室側はリビングよりも外側となっているため採光が確保できます。居室への採光をリビングに取り入れるために、リビングと洋室の間の壁にFIX窓を配置します。高い位置に配置することで、居室側の窓からの光をリビング奥へと導きます。

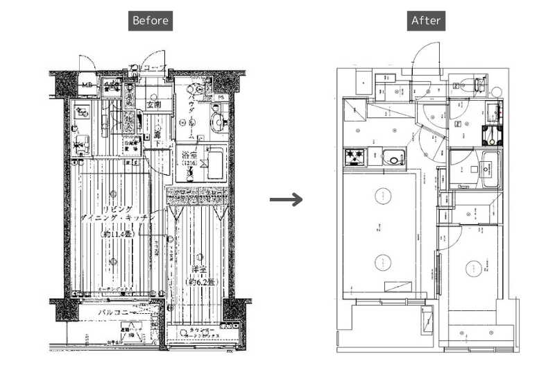
・間取りBefore/After(予定)

4.施工完了(10月26日更新)
ワンランク上の空間を求める単身者に向け、設備をリニューアルして落ち着いた室内空間へ生まれ変わりました。
✓ペニンシュラ型キッチンの効果で開放感のあるLDKへ
✓機能性があがった水回り設備で快適空間
✓自由空間を無駄なく利用できる2つの工夫
✓明るさ確保のアイディアが体感の広さをUP
・室内写真<After>
ペニンシュラ型キッチンの効果で開放感のあるLDKへ
キッチンのガラスパネルは油はねを防ぐのはもちろん、スタイリッシュな見た目で開放感が損なわれず今回の間取りに最適なアイテムです。
また、キッチンとカップボードのカラーを同色にしたことで、室内が引き締まり落ち着きのある印象になりました。

機能性があがった水回り設備で快適空間
アッパーキャビネットと洗面台の収納で洗面室内の収納力をアップさせ、トイレを独立させて衛生面を確保しました。また、洗面台の横に洗濯機置き場を移動させたことで、洗面室の機能性が格段にあがりました。
明るい設備で統一し清潔感のある洗面室に変わりました。

自由空間を無駄なく利用できる2つの工夫
居室の自由空間を無駄なく利用できるようにした2つの工夫、1つ目はウォークインクローゼット(WIC)、収納力を向上させたうえに引き戸となっているため、扉の前には物を置けて利用可能スペースとなります。

2つ目はカウンターがあったスペースの有効活用です。
道路を挟んで駐車場があり周りに高い建物がないので、採光の取れる窓の下もまた自由空間となりベッドや棚を置くなど自分好みに配置が可能です。

明るさ確保のアイディアが体感の広さをUP
天井高2.6mを確保しているため体感では11帖以上の広さを感じます。
天井が高いことでシーリングライトの明かりがやわらかく広がり、優しい明るさのLDKになりました。
また、この広さを感じる空間演出にはFIX窓から入る居室からの光と、間接照明の明かりが空間の広がりや明るさ感UPに効果を発揮しています。
間接照明は造作寸法や取付位置など、プランニングが難しいとされていますが、この部屋に元々あった換気扇ダクトの位置を上手く利用し室内の明るさが確保できました。

・担当者インタビュー
賃貸用物件から居住用物件に仕様を変更して、目黒ブランドの需要に応えるリノベーションは、これまで経験した事のない高級感を意識したプロジェクトだったので、新たにチャレンジしたことが多くありました。
1.天井高の差異
室内の洋室とリビング部分の天井高が2.6mあるのに水回りの天井高は2.24mと極端に低かったので、水回りの天井高を上げることにしました。最終的に2.3mまで上げたのですが、その6cm高くするのに苦労しました。
解体後に天井の空間を確認してから1㎝単位で調整し、水回りのプランが決定するまでは期日ぎりぎりで、着工後10日程かかりました。
2.シューズインクローゼットとカップボードを設置
「シューズインクローゼットとカップボードを造り、トイレは独立させる」このパズルの試行錯誤にはミリ単位の調整をして苦労しました。
これまで同サイズの部屋には、壁付けキッチンと吊戸棚を使用していましたが、お洒落ポイントとしてペニンシュラキッチンとカップボードを設置することで、キッチンスペースが広くなり高級感ある空間に変わりました。
水回りの設備をかためられた事で、理想の収納が造れました。想定していた『目黒ブランド』が描けたと思います。
単身者に向けたプランでしたが、二人暮らしでも十分な広さと収納力で案内をしていただいた業者の方からも高評価です。
今回チャレンジをした“シューズインクローゼット”と“間接照明”、“カップボード”はこれからのリノベーション物件には積極的に取り入れていきたいと思います。
(担当者:リノベーション事業部 小浜)
・フォトギャラリー





最後までお読みいただきまして、ありがとうございました。
本物件は、お住まいをお探しの方へ向けての「リノベーション物件」として販売活動を行っています。
当社はリノベーション事業だけでなく、不動産投資のコンサルティング事業、1万円から出資の出来る不動産クラウドファンディング「投活」の事業も行っています。
今後も、リノベーション×不動産クラウドファンディング、リノベーション×不動産投資の事業にご期待下さい。