【リノベ事例】文京区水道2丁目/リノベーションプロジェクト
今回は、自然と下町の魅力を楽しむ「文京区水道2丁目」に位置する築23年中古マンションのリノベーションをレポートしていきます。

1.地域情報
・水道 名前の由来
「水道」という地名は、江戸時代にこの地を神田上水が通っていたことに由来します。神田上水は神田川から水を引き入れ、江戸の町に給水する重要な上水道でした。その水路が文京区内を通ったため、この地は「水道端」と呼ばれるようになりました。
明治時代に町名を定める際、その歴史的背景を踏まえて「水道町」と名付けられ、昭和40年代の住居表示制度により現在の「水道」という地名が定着しました。

今昔マップon the webより作成
・地域の歴史
江戸時代以前、この地は畑が広がっていましたが、徳川家康の江戸入国後、神田上水の整備により大きく変わりました。江戸時代には武家地や寺地が多く、神田川では紙漉きも行われました。
明治時代に神田上水は暗渠化され「水道通り」として名が残ります。明治17年頃には神田川沿いに桜が植えられ名所となりましたが、大正8年の護岸工事でほとんどが失われました。1964年(昭和39年)の住居表示で水道町が統合され、現在の「水道」という地名が生まれ、上水道の歴史を今に伝えています。

・鉄道の歴史
文京区水道地域は、甲武鉄道(現在のJR中央線)の開業以来、鉄道とともに発展してきました。
1906年(明治39年)に「水道橋駅」が開業し、1909年(明治42年)の国有化後は周辺の交通網が整備されました。1972年(昭和47年)には都営地下鉄6号線(現在の都営地下鉄三田線)「水道橋駅」が開業し、地下鉄とJRが交差する交通の要地として利便性が高まり、商業や文化の拠点となりました。

物件最寄りの東京メトロ有楽町線「江戸川橋駅」は、1974年(昭和49年)に開業しました。駅名は、近くを流れる神田川に架かる歴史ある「江戸川橋」に由来します。
かつて1971年(昭和46年)3月まで運行されていた都電(路面電車)の停留所名を受け継いでおり、地域との深い結びつきを感じさせます。

■「江戸川橋駅」から東京メトロ有楽町線で「池袋駅」まで約6分
■「江戸川橋駅」から東京メトロ有楽町線で「有楽町駅」まで約12分
■「神楽坂駅」から東京メトロ東西線で「大手町駅」まで約8分
・これからの文京区開発
文京区は文教地区として落ち着いた街並みが保たれており、建築制限の影響で他区に見られるような大型複合施設の開発は抑えられています。
しかし、老朽化による建替えや新築マンション建設は今後も予定されています。

後楽二丁目南地区第一種市街地再開発事業
飯田橋駅北東側では、地上35階・地下3階建ての大規模複合施設を核としたまちづくりが計画されています。駅周辺は老朽化した中小建物が多く、市街地更新が課題となっていました。
これまで西側で進められてきた再開発に加え、歩行者空間や駅前広場の拡充、駅と街をつなぐ動線強化を目的に、東側にも新たな人の流れを創出します。東京都・文京区・新宿区・千代田区・東京メトロ・東京都交通局が進める「飯田橋駅周辺基盤再整備構想案」の一環として、「後楽二丁目南地区第一種市街地再開発事業」は2026年度解体、2027年度着工、2030年度竣工予定です。

その他、南東側の千代田区側では「飯田橋駅東地区第一種市街地再開発事業」が2026年度竣工予定で進められています。
また、目白通りを挟んだ西側では「新宿区下宮比町地区開発」が計画されています。
※【リノベ事例】千代田区富士見2丁目/リノベーションプロジェクト にも周辺開発を掲載しています。
・周辺施設
東京ドーム・東京ドームシティ
戦後の1937年(昭和12年)に開場した後楽園球場が、時代に応じたリニューアルを経て1988年(昭和63年)に日本初のドーム球場として1988年(昭和63年)に開場しました。プロ野球やコンサートをはじめ、展示会やイベントが年間を通じて様々なイベントが開催されています。
併設されている東京ドームシティアトラクションズの遊園地、LaQuaの天然温泉、ショッピングモールは子供から大人まで、オールシーズン一日中楽しめる複合施設です。

小石川後楽園
庭園の外側には東京ドームや高層ビルが立ち並びますが、園内に一歩足を踏み入れると、池や築山、樹木に囲まれた静寂な景色が広がります。江戸時代から続く歴史ある日本庭園で、四季折々の自然美を楽しめる貴重な空間です。

ホテル椿山荘東京
都会の喧騒から離れた日本庭園と上質なホスピタリティが魅力で、約10,000坪の敷地内には四季折々の庭園が広がります。幻想的な雲海は朝や夜、さらにライトアップ時にはまた違った情景を楽しめます。庭園の静寂や四季の移ろい、そして雲海——さまざまな景色が訪れる人を魅了します。

2.物件情報
・立地
都心でありながら静かで治安が良く、緑や教育環境にも恵まれた落ち着いた住宅街です。夜間も安心して歩ける街並みは、日々の暮らしに安心感をもたらします。
神田川沿いの「江戸川公園」や「肥後細川庭園」では四季折々の自然を楽しめ、駅前の「地蔵通り商店街」には昔ながらのお店が並び、利便性と地域の温かみを感じられます。

最寄りの江戸川橋駅をはじめ、大人の雰囲気が漂う神楽坂駅、落ち着きと利便性を兼ね備えた飯田橋駅、利便性とにぎわいが調和する後楽園駅――いずれの街も徒歩圏内にあり、その日の気分に合わせて街並みを選べるのが魅力です。

・物件の特徴
神田川と首都高速道路に面した立地にあり、低層階はレンガタイル、中層階以上はオフホワイトと、重厚感のある印象的な外観が特徴の建物です。角地に位置しているため、開放感も感じられます。
2019年(令和元年)には大規模修繕工事が実施されており、管理体制も整っています。

1階部分には駐車場と駐輪場が設置されているため、エントランスは階段を上がった2階の高さに位置しています。

エントランスは広く明るく、高級感のある造りです。共用スペースにはテーブルと椅子が設置されており、ちょっとした作業や休憩にも利用できます。

・物件概要
所在地:東京都文京区水道2丁目
交通:東京メトロ有楽町線「江戸川橋」駅徒歩6分
構造:鉄筋コンクリート造陸屋根9階建
総戸数:38戸
専有面積:50.16㎡
築年月:2002年7月
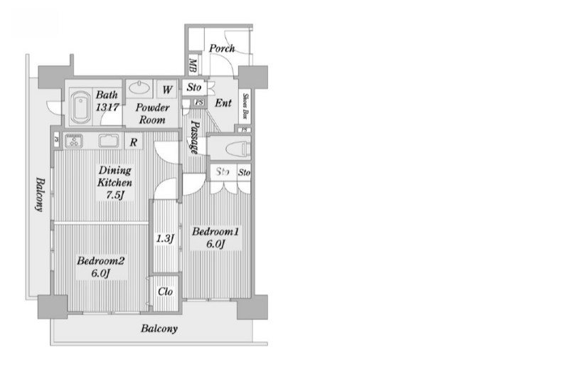
・間取り図< Before>

・室内写真<Before>(12月12更新)





3.プランニング
・コンセプト
「家族の成長をやさしく見守る住まい」
学校が多く子育て世帯が集まる江戸川橋エリアで、30〜40代のファミリーを想定した住まいです。
住環境としての安心感に加え、室内には家族の気配をほどよく感じられる工夫を取り入れ、子どもの成長を見守れる安心感のある空間に仕上げました。
家族が長く心地よく暮らせる、機能性と温かさを両立した住まいです。
・リノベーションのポイントと担当者の声
POINT1. 1LDKから2LDKへ──キッチン計画における最適解の追求
1LDKから2LDKへの改修に際し、最も検討を要したのがキッチンの配置でした。窓が多い構造上、壁付け形式が採用できず、カウンター型やセパレート型も条件面および需要面から採用を見送りました。
検討の結果、最適解として アイランドキッチン を導入。
通常仕様では対応が難しいため上位グレードへ変更し、さらにキッチン横には特注の防火ガラスを設置することで、窓近くでも安全性と意匠性を両立します。

POINT2. 水回り計画のポイントについて
今回の改修では、キッチンの配置に大きな制約があったため、室内の広さの確保と2部屋のレイアウトを優先して検討を進めました。それに伴い、水回りについては大きな変更を加えず、必要に応じて洗面室と洗濯機置き場の位置のみを見直しています。
これにより、動線の効率性を保ちながら、全体のバランスを崩さないレイアウトを実現しました。
限られたスペースの中でも、優先順位を明確にすることで、機能性と快適性の両立を図っています。

POINT3. 音環境と居室デザインへの配慮
物件は大通りに面しているため騒音が懸念されましたが、2重サッシの採用により室内は非常に静かです。バルコニーに面している洋室は大通りとは反対側に配置したことで、より落ち着いた環境を確保できました。
一方、玄関側の洋室は窓がないため採光が課題でしたが、室内窓(LIXIL「デコマド」)を設置することで明るさと空気の流れを確保しました。小さなお子さまがいる時期には、このデコマドから様子を見守ることができ、将来的にはカーテンを取り付けられる仕様としているため、成長に合わせて柔軟に使い続けられる空間となっています。
また、この洋室の入口は当初引き戸を検討していましたが、室内にデッドスペースが生じるため採用を見送りました。限られた空間を有効に活用するための判断です。
騒音対策から採光、将来の使い勝手まで、多角的に配慮した居室デザインを目指しています。

・間取りBefore/After(予定)

4.解体/施工工事(12月25日更新)
・解体
解体工事が無事に完了しました。
角部屋ということもあり、スケルトン状態になると改めて自然光の入り方がよく分かります。空間全体が明るく、これからの仕上がりがますます楽しみです。

当初のプランから変更もなく、次の工程である「枠組み工事」へと進んでいきます。
天井高は2500mmあるため、ダウンライトを設置しても圧迫感が出ず、すっきりとした印象になりそうです。

床は置床工法を採用しており、配線の自由度が高く、キッチンの配置変更を含むレイアウトにも柔軟に対応できます。

・枠組み工事~壁立ち上がり(2月13日更新)
解体工事完了後は、枠組工事から壁の立ち上がりへと工程が進みました。
本物件は2002年築と比較的築浅なこともあり、想定外の構造的な問題もなく、工事は全体的にとてもスムーズに進行しています。
そのため、計画通りの納まりや細かな仕様の確認にも、しっかり時間をかけることができています。


キッチン横の防火ガラスについては、この壁立ち上がりの直前まで検討を重ねていましたが、安全性を考慮して設置することに決めました!
※写真右側の開口部に、防火ガラスが設置されます
壁の立ち上がりまで進み、空間の全体像が見えてきました。
次はいよいよ完成となります。
完成後のレポートで詳しくお伝えしますので、ぜひご覧ください。